P17439 - Eladó kúria, 8597 Ganna
Ajánlat minősítése: 
Eladási ár: 150.00 millió Ft (417 676 EUR, 485 500 USD)
Épült: ; állapot: ; beépített összterület: 190 m²; telek: 30000 m²
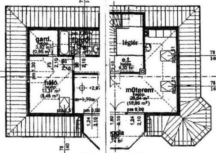
Szobák: összesen 4, ebből félszoba -, hálószobaként használható 3
Fűtés: -; burkolat: ; parkolás: -
Bakonyalján, fantasztikus környezetben, Pápához közeli birtok eladó.
Három szoba – fürdőszobákkal, nagy nappali és az emeleten műterem. Kandalló, kemence, századfordulós bútorok, antik enteriőr.
A ház teljes berendezéssel, kompletten eladó.
A három hektáros birtok közepén patak, mely mellett 5000 nm-es halastó található, telepített halakkal.
A területen éger erdő, százéves fűzfákkal. Ötven gyümölcsfa, kétszáz tő málna, harminc tő áfonya.
A birtok mindkét bejárata aszfaltos útról csatlakozik.
A telek fekvése, a ház és a környezet kialakítása egyedi, hangulata varázslatos.
A vendégház közepén van a konyha, a csodaszép fafűtéses kemence-csikótűzhellyel. A konyhából nyílik a nagyszoba (25nm) saját fürdőszobával. A konyhából nyílik még a másik szoba saját fürdőszobával. Központi fűtés van az egész házban.
A ház folytatásában lett kialakítva egy külön bejáratú apartman (36nm) saját fürdőszobával és felszerelt konyhával. Az udvarban lévő nyári konyhát szabadidő szobává alakították.















