P4947X - Eladó villa, 1119 Budapest (Újbuda)
Ajánlat minősítése: 
Eladási ár: 175.00 millió Ft (480 941 EUR, 567 224 USD)
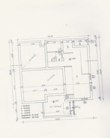
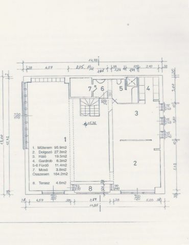
Épült: 1927; állapot: Igényes kivitelű; beépített összterület: 431 m²; telek: 622 m²
Szobák: összesen 5, ebből félszoba -, hálószobaként használható 3
Fűtés: Kondenzációs gázkazán padló + radiátorokkal; burkolat: Gres lapok; parkolás: 1 nyitott beálló, 1 garázs az épületben
XI., zöldövezetben iroda-lakás, cégszékház, követség célra ideális igényes kivitelű, válaszfalazással könnyen alakítható nagy villa eladó. A tágas földszinti és emeleti terek (96 és 54 nm) további szobákra, irodákra oszthatók. A 4-es metró megállója 5-6 perc gyalogtávolságra van az ingatlantól. Az épületet 1998-ban bővítették az emeleti szint beépítésével (és a meglévő részek teljes és igényes átépítésével). Impozáns terek, nagy belmagasság, korszerű beépített bútorok, motoros mozgatású külső-belső árnyékolók, központi klíma, rolók, igényes kivitelű szaniterek, Viessmann kazán és vízmelegítő, öntözőrendszer, távirányítású kapuk, szép és ápolt kert dísznövényekkel. Igényes kivitelű ingatlan, kiváló infrastruktúrával, multifunkciós használhatósággal.
Azonnal beköltözhető.
Iroda, lakás, cégszékház, nagykövetség, bemutatóterem, stb. számára ideális.












