P21486 - Eladó ikerház egyik fele, 1039 Budapest
Ajánlat minősítése: 
Eladási ár: 220.00 millió Ft (602 888 EUR, 705 490 USD)
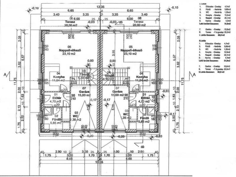
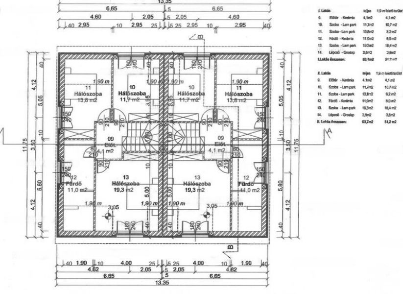
Épült: 2023; állapot: Új; beépített összterület: 135 m²; telek: 297 m²
Szobák: összesen 4, ebből félszoba -, hálószobaként használható 3
Fűtés: Hőszivattyús fűtés; burkolat: laminált parketta, kerámia; parkolás: 1 nyitott beálló, 1 garázs az épületben
Csillaghegy Duna felőli oldalán, csendes kertvárosi hangulatú utcában most épülő ikerház egyik fele eladó.
A ház kívülről a színezésen kívül készen van. Belső munkák folynak jelenleg. Várható befejezés: 2024 közepe.
Az ikerház csak két szintes:
- Földszinten / 65 nm+ 20 nm terasz / tágas kertkapcsolatos amerikai konyhás nappali, zuhanyzó-háztartási helyiség, tároló és garázs van. A garázs igény estén plusz szobává alakítható.
- Emeleten / 60 nm / 3 hálószoba ( 19, 14, 12 nm ) és egy 11 nm-es fürdőszoba van.
Az ikerház másik felétől teljesen szeparált bejárattal és kizárólagos használatú kertrésszel rendelkezik.
Műszaki paraméterek:
- a ház AA minősítésű, YTONG téglából épült, 10 cm homlokzati grafitos hőszigetelő rendszerrel
- hőszigetelt, (Hoffstadter) antracit szürke nyílászárók 3 rétegű üvegezéssel
- hőszivattyús padlófűtés, amelyhez optimálisan GEO-áramot használnak fel,
Napelem előkészítés, riasztó előkészítés, elektromos redőny előkészítés beépített redőnytokokkal, klíma előkészítés.
Kiváló infrastruktúra, közelben a HÉV és a BKK buszok megállói. A környéken számos bölcsőde, iskola, óvoda és bevásárlási lehetőség található.
A Duna-part, és a Római part közelsége számos kikapcsolódási és sportolási lehetőséget kínál.







